- Key Features

Features

  • Core AI modules delivering fast, accurate building code and bylaw compliance review.
  • Additional AI modules that extend Blueprint AI’s capabilities for advanced design coordination and analysis.
Home / Features

Experience the Core Functions That Power Blueprint AI

Building Code Compliance

AI-based drawing review system that automatically checks architectural designs against building codes.

Fire Seperation Overlay

Automatically superimpose minimum fire separation requirements and compare them with wall tags and wall schedules.

Exiting and Egress Review

Map travel distances and calculate exit capacities directly on floor plans.

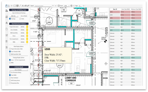
Door Schedule Review

Evaluate Building Code requirements for door schedules and door tags for every door, turning days of work into seconds.

Accessible Paths of Travel Review

Visualize accessible clearances on plans to optimize your design.

Code Analysis, Reference & Chatbot

Your intelligent assistant for building code interpretation and technical reference.

Convenient Code References

Provides hyperlinked Code references for quick cross-checking of the AI’s analysis and easy validation of results.

Customized Chatbot

A chatbot specialized in Building Code domain knowledge, designed by industry experts to minimize hallucinations and provide accurate responses.

Project Specific Response

Integrates drawing and project information so the AI can deliver insights directly relevant to your project.

PDF Annotation & Report Export

Generate structured compliance reports directly from annotated drawings.

Annotation and Measurement

Built-in annotation and measurement tools, similar to Adobe Acrobat and Bluebeam Revu.

Export

Export rendered drawings to PDF or tabulated results to CSV for easy documentation.

Compatibility

Fully compatible with Adobe Acrobat and Bluebeam Revu, including editable annotations and measurements.

More Intelligent Features for Smarter Design

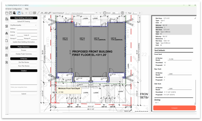
AI-Based Zoning Bylaw Check

Automatically checks architectural drawings for zoning compliance.

Measures distances, setbacks, and coverage automatically.

Validates designs against each municipality’s zoning bylaws.

Multidisciplinary Coordination

Enhances cross-discipline collaboration by detecting design inconsistencies.

Overlays mechanical, electrical, and architectural drawings.

Detects layout discrepancies and conflicts early in the process.

Empowering Smarter, Faster, and More Accurate Design Compliance

Building Code Compliance Reviews

Multidisciplinary Drawing Coordination

Zoning Bylaw Checks

Deficiency Identification

Easier Markups and Measurement

Building Code Chatbot

Quantity Takeoff