Reviewed in Seconds:

A Drawing Review AI Specialized in:

Building Code ComplianceZoning Bylaw ComplianceMultidisciplinary Coordination

Now available on both Windows and macOS.

What does Blueprint AI do?

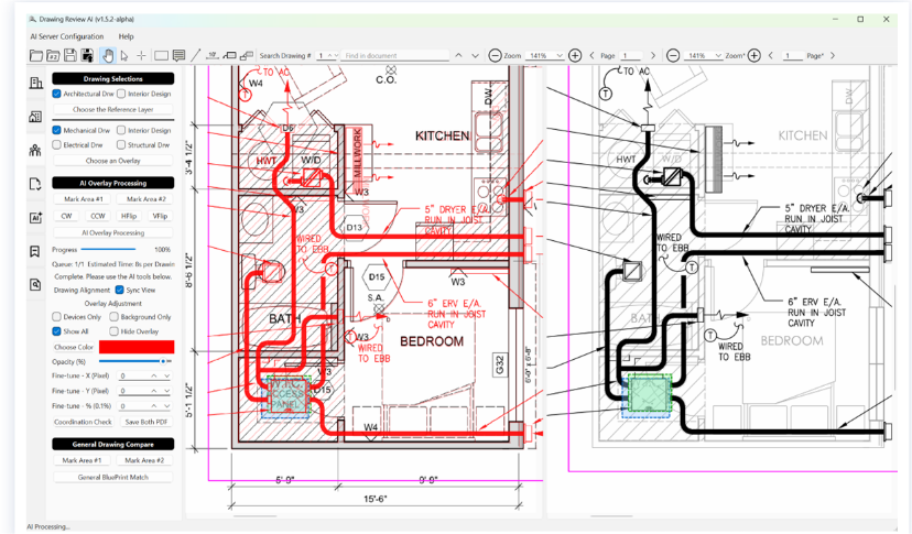
Blueprint AI is a revolutionary companion tool designed for instant reviews of architectural and construction drawings. Developed by professionals from the architecture, engineering, construction, and AI industries, Blueprint AI is here to transform the way you work.

01.

Building Code Compliance

Have an interactive AI companion that assists with Building Code reviews in PDF or Revit and provides instant feedback.

02.

Zoning Bylaw Compliance

Check the Zoning Bylaw specific to each municipality before submitting to the City to support a smooth permit application process.

03.

Multidisciplinary Coordination

Shared platform for collaboration across disciplines and parties to improve coordination and communication.

Benefits

For Building Code Consultants

Productivity Improvement

You’re the expert. Let AI handle the laborious tasks in seconds so you can focus on professional judgment and decision-making.

Interactive

Building Code reviews become visual and dynamic. Transform detailed reviews into efficient spot-checks and judgment calls.

Worldwide Coverage

Compatible with Building Codes across provinces and expanding globally, supporting multiple languages for seamless integration anywhere.

Easy-to-Use

Designed with experienced and senior staff in mind, featuring an intuitive interface that requires minimal training.

Highly Secure Service

Hosted on a locally managed, fully encrypted server to protect the confidentiality and integrity of all municipal projects.

Reduce Staff Workload

Lighten the workload of staff and skeleton crews by leveraging an AI assistant purpose-built for Building Code review.

Reliability

Our AI is trained by experts to understand common architectural industry terms, using proprietary AI algorithms to attain a high degree of reliability for professional use.

Real-Time Feedback

Receive instantaneous feedback with relevant Code references and transparent assumptions, without post-human adjustments to achieve over 97% accuracy.

More Time for Design

Save time memorizing the Building Code and spend more time focusing on the “design” aspect.

Trusted by over 20 partners and clients, we are here to make things better for you.

Built by real professionals for real industry use, boost your productivity today with Blueprint AI.

Logo 1 Logo 2 Logo 3 Logo 4 Logo 5 Logo 6 Logo 1 Logo 2 Logo 3 Logo 4 Logo 5 Logo 6

Voices of Trust and Collaboration

We speak in numbers, data, and information at Blueprint AI, and the results are in based on our pilot programs:

Accuracy in Detection
0 %
Time Saving in Drawing Reviews
0 %
Customer satisfaction
0 %
Jeff S.

Architect AIBC, AAA, OAA

As a firm regularly involved in complex multi-family and mixed-use developments across several jurisdictions, we constantly deal with intricate building code requirements and evolving local amendments.

Since adopting Blueprint AI our code analysis process has become more efficient. The automated cross-referencing and AI-driven compliance checks help us quickly identify potential issues during building permit document preparation.

We particularly appreciate how the system integrates provincial codes and/or Vancouver Building Bylaw with clear, clause-based commentary, something that used to take hours of manual review. It has become an essential quality-control tool for our team.

Josiah T

Amazon SDE & Building Code Professional

Blueprint AI is redefining the balance between technology and Building Code compliance. Having seen firsthand what their platform is capable of, I’m genuinely excited about the direction it’s taking the construction industry. Their approach to implementing AI to streamline Code compliance has the potential to transform how projects are reviewed, communicated, and delivered.

Jeff M.

GHL Code Consulting

Your product is miles ahead than other AI tools.

Jack H.

Pontem Group Code Consulting

This is exactly what we want.

Anonymous consultant

Survey, BC, Canada

I hope it will be reality soon. I think there is a big potential to automate lots of tasks we are doing in our work.

Anonymous Partner

Building Code Consultant, Vancouver, BC, Canada

For years, we have been dreaming of a building code review tool like this. Blueprint AI has successfully brought that dream to life.

We’d love to hear from you!

Fill in the form below and our team will get back to you shortly.

Blueprint AI will make a difference in how you work.

Reach out to us today to learn more.

Location

#1504-1075 W Georgia St, Vancouver BC V6E 3C9